全国[切换]

设计施工一站式服务,多年经验丰富,多种成功案例

2020-01-09 13:42

来源:点击:19844

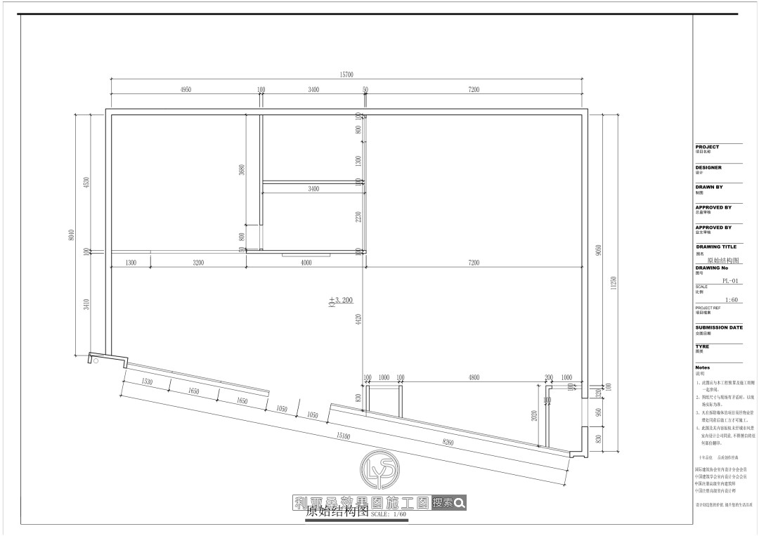
本案例是根据效果图画的施工图


更多装修效果图尽在装修乐http://www.zxl.com/

客户发的效果图:

设计施工一站式服务,多年经验丰富,多种成功案例设计施工一站式服务,多年经验丰富,多种成功案例设计施工一站式服务,多年经验丰富,多种成功案例设计施工一站式服务,多年经验丰富,多种成功案例设计施工一站式服务,多年经验丰富,多种成功案例设计施工一站式服务,多年经验丰富,多种成功案例

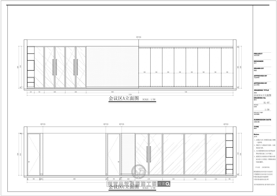
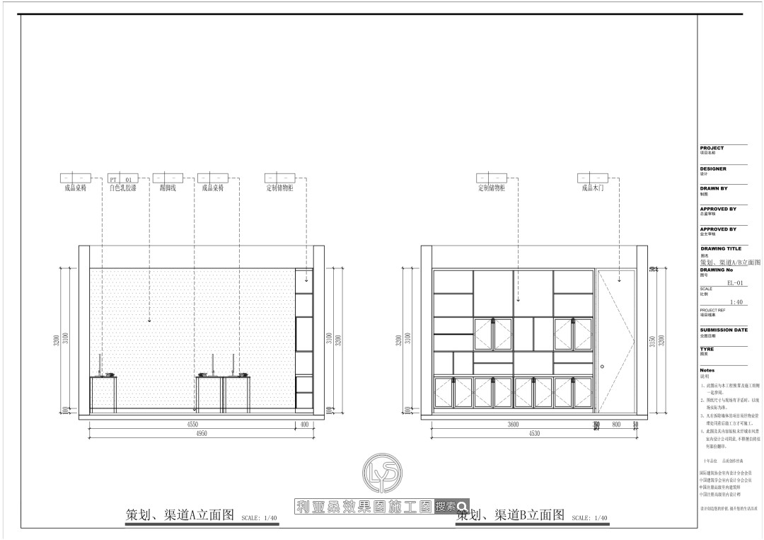
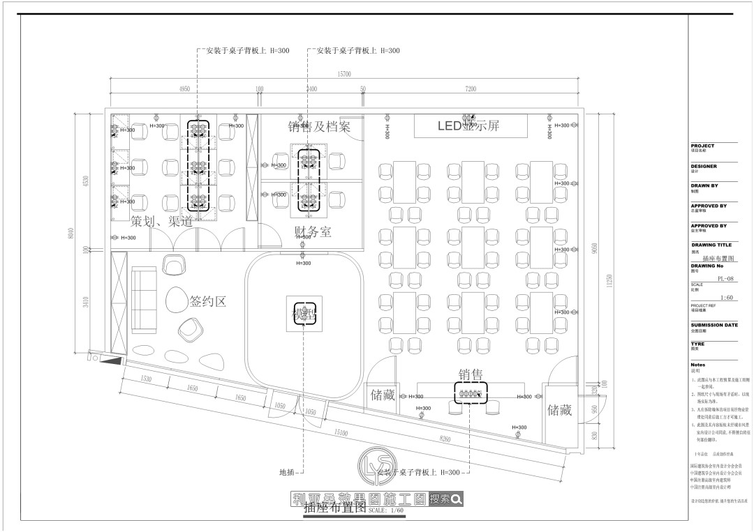
利亚桑根据客户的效果图画的施工图:

设计施工一站式服务,多年经验丰富,多种成功案例设计施工一站式服务,多年经验丰富,多种成功案例设计施工一站式服务,多年经验丰富,多种成功案例设计施工一站式服务,多年经验丰富,多种成功案例设计施工一站式服务,多年经验丰富,多种成功案例设计施工一站式服务,多年经验丰富,多种成功案例设计施工一站式服务,多年经验丰富,多种成功案例设计施工一站式服务,多年经验丰富,多种成功案例设计施工一站式服务,多年经验丰富,多种成功案例设计施工一站式服务,多年经验丰富,多种成功案例设计施工一站式服务,多年经验丰富,多种成功案例设计施工一站式服务,多年经验丰富,多种成功案例设计施工一站式服务,多年经验丰富,多种成功案例设计施工一站式服务,多年经验丰富,多种成功案例设计施工一站式服务,多年经验丰富,多种成功案例设计施工一站式服务,多年经验丰富,多种成功案例设计施工一站式服务,多年经验丰富,多种成功案例设计施工一站式服务,多年经验丰富,多种成功案例设计施工一站式服务,多年经验丰富,多种成功案例设计施工一站式服务,多年经验丰富,多种成功案例设计施工一站式服务,多年经验丰富,多种成功案例设计施工一站式服务,多年经验丰富,多种成功案例


以上,就是装修乐小编给大家带来的设计施工一站式服务,多年经验丰富,多种成功案例全部内容,希望对大家有所帮助!

标签: 工装施工图

热门文章

装修公司 更多>>

最新文章 更多>>

免费获取报价

省钱 · 省时 · 省心

今日仅剩100个免费名额

您的信息,我们将严格保密请放心填写

热门标签更多>>

免费报价

免费设计

  • 装修计算器

    今天已经有88位业主获取了装修预算

  • 装修预算报价为75625
    • 材料费 :546464
    • 人工费 :46546
    • 设计费 :1456
    • 质检费 :464123
  • 免费装修设计

    已经有14652人选择

  • *声明 :装修乐为您提供专业、透明、准确的装修报价,该项服务绝不产生任何费用,您的隐私将被严格保密!

  • 提交成功!
  • 稍后装修顾问将来电,免费为您提供装修咨询服务

    如有疑问,可扫码添加客服微信咨询